
104㎡輕法式 | 絲絲點點浪漫,累積著家的情感
項目信息
地址:府苑新村
城市:中國 杭州
戶型:兩室兩廳
面積:104㎡
風格:輕法式
設計施工:浙江南鴻裝飾
本案常住兩人。女業主就職于國企,性格可愛風趣,這套房子也是她的父母為自己的寶貝女兒購置的,按照女業主喜愛的法式風格進行設計。
戶型功能上保留主臥、次臥兩個房間,次臥留給父母過來時住,主臥的話需要給女業主單獨設計出衣帽間。另外,業主有在家辦公的需求,我們將這塊辦公區域合并到了客廳,節省空間。


空間的墻頂面用了比較多的pu線和法式角花、燈盤,提升空間的立體感、層次感與精致感。柜門把手統一使用玫瑰金色,全屋的燈飾也都契合法式的風格。軟裝部分多用絨布材質,質地柔和并且造型多樣,在輕盈之中展現生活的意趣與溫馨。

Layout Design
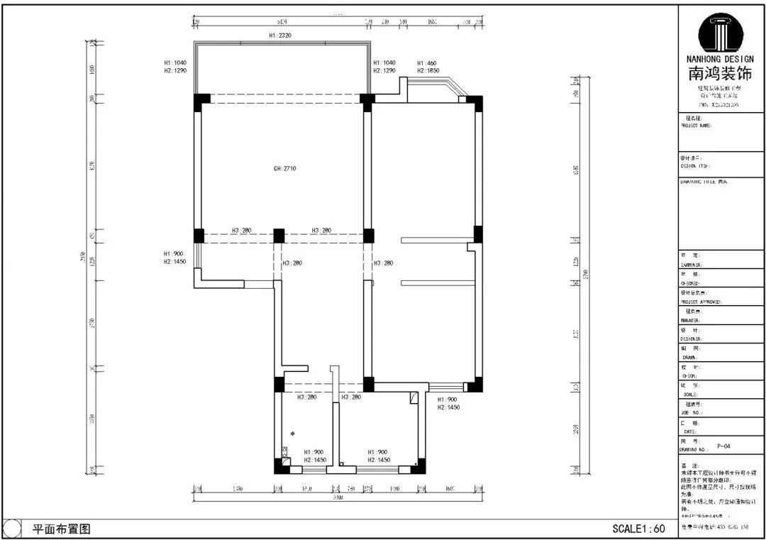
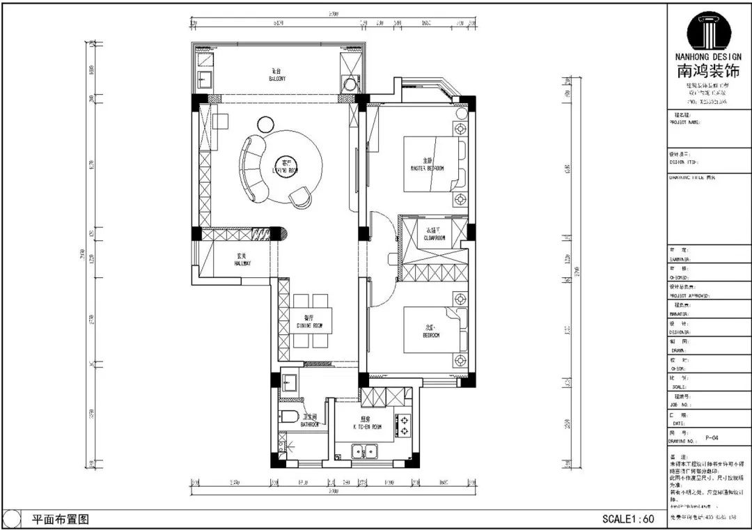
戶型方案

優點:1、每個功能區都比較方正,利用率較高;2、陽臺面積大,客廳采光面大。
缺點:1、入戶玄關有一根柱子,需要通過設計弱化;2、衛生間對著餐廳,隱私性不足,不是很舒服。

1、打造入戶門廳,增強玄關的美觀度、收納力和儀式感。
2、衛生間臺盆外置,并設計玻璃隔斷,增加餐衛隱私性的同時不影響采光。
3、主臥增加了衣帽間功能區。
Hallway
玄關

鑰匙轉動的瞬間,家的柔情詩篇也在慢慢展卷...

入戶口不能拆除的柱體,我們通過設計玻璃隔斷和通透的柜體去弱化存在感,也為客廳制造視覺上的遮擋。


地面用黑白花磚鋪開門廳的儀式感,柔和的光線暈染出詩意和優雅。多規格的儲物體量可以適配不同尺寸的物件,為空間建立起科學高效的收納秩序。

玄關通過半拱門過渡到室內,左右兩側分別通向客餐廳,中部通往臥室的過道區域,我們設計了小端景來讓視覺有一個雅致的落點。
Living Room
客廳

客廳的采光面很大,光線明亮,空間格外通透開敞。


客廳內自上而下的裝飾元素比較多樣,材質豐富,白色底面在此時便發揮了包容的優勢,很好地消除了不同元素間的對比度,調和出和諧的美感。巧妙的家具排布與色彩搭配,讓視覺無形中就聚焦到了核心視聽區。



綠色的花瓣絨布沙發質感復古,也易打理,搭配云朵茶幾和BOBO羊羔絨單椅,讓空間布滿簡約而舒適的格調。頂面一盞Art Deco風格的蛋白石黃銅吊燈,空間的精致感無以復加。

電視背景墻定位展示與收納一體,拱門造型的開放格搭配格柵抽屜柜門的懸浮式電視柜,在視覺上形成多重變化與層次,實用性高的同時又有絕佳的顏值。


沙發背后做了多組白色收納柜,長虹玻璃的柜門增強空間的靈動感和通透感。柜體延伸出開放式書桌區,為業主在家辦公打造便利。頂部吊柜也采用了拱形開放格的樣式,與電視背景墻形成呼應。



溫暖的宜居感在空間內勻質舒展開來,圓潤細膩的觸感遍布全屋,設計巧妙地避開尖銳,將圓弧的形態化為藝術的無聲表達。


陽臺作為生活家政區使用,百葉簾自帶歲月靜好的感受,過濾日光,打造文藝范的優雅。地柜底部留出空檔,方便掃地機器人出入。
Dining Room
餐廳


餐廳延續了客廳的優雅格調,線條簡約的綠色餐椅搭配奶油風吊燈,主打柔和寧靜的氛圍感。



餐桌相鄰餐邊柜,取用物品更加方便。吊柜同樣加入朦朧感的玻璃材質,搭配柜內燈帶,營造明亮、時尚的氣場。
Bedroom
臥室


主臥的背景墻線條沿用客廳,并加入分色的設計,提升空間層次感。少女粉透出可愛與輕快的情緒,搭配舒適的床品,讓臥室成為這個家最令人放松的所在。



為父母留宿準備的次臥房間,在裝飾上更為的素雅,棕白拼色的軟包床頭更方便背靠著休息,復古風實木邊幾和陶瓷的吊燈,共同打造古樸而寧靜的居室氛圍。
Bathroom
衛生間
<img src="/public/upload/ima
免費
免費申請戶型規劃
專屬設計師免費1對1全程服務
已經有3781人申請
24小時免費咨詢電話
400-8800-618
你家預算
108080元