
全屋侘寂風藝術漆,玄關造景巧解尷尬,這套疊墅的設計感不一般!
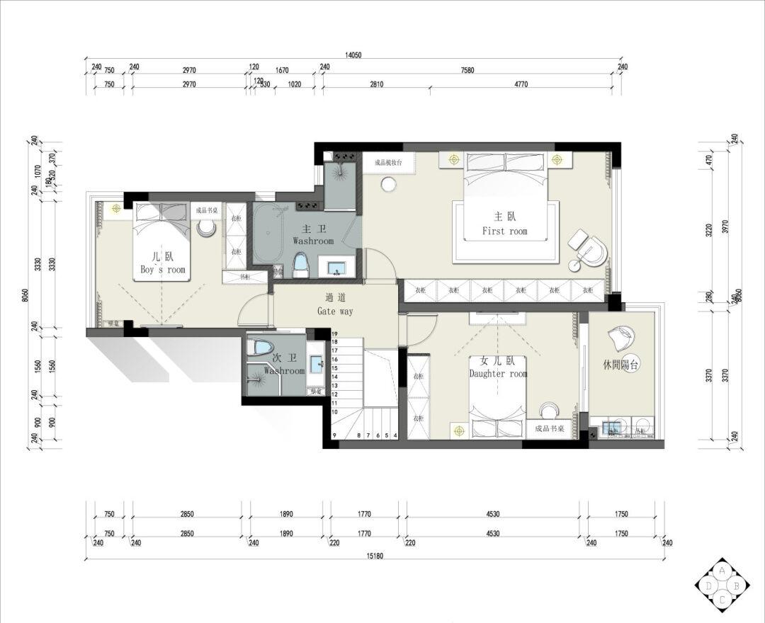
本案居住一家六口,寬闊的室內尺度能夠輕松滿足三代人的使用需求。一樓安置長輩房,緊鄰衛生間,為老人打造安靜、方便的寢居環境;二樓做主臥和兩間兒童房,配備主次衛,上下兩層空間設計,為全家人提供了私密度滿分的舒適生活。
在本案的規劃思路上,設計師表示,首先是從屋主的生活出發去拓展空間功能,接著排布動線,最大程度地符合他們的使用習慣,最后結合土建墻體進行空間拓展加成,將同層效果拉到最大,如此便構筑出了這所優雅高級、功能落地的現代雅居。

室內借重低彩度的水泥肌理藝術涂料作為質樸基底,相伴雅黑作襯、燈線引導,泛漫恰到好處之美感,融洽侘寂韻味。在充分保證寬敞活動空間的同時,大面積落地窗又將室外風景攬入向內,在視覺上打通了內外的對景關系,光感豐沛盈潤,照現一室明凈。


1F

2F
CASE APPRECIATION
▽
玄關

門廳為了消解“入戶見梯”的尷尬,特意做懸浮樓梯+地臺+樂器區的設計,這也是本案空間的一大亮點。

地臺將整個樓梯抬高并擴展了基底,懸浮感疊級踏步更讓美觀性大大拉升,同時置入孩子的樂器設備打造一個沉浸式娛樂區域,為空間增添最為獨特的焦點。
客廳

客餐廚全開放的格局消隱空間邊界,兩邊落地窗搭配純白夢幻簾,陽光灑落,溫暖居室每一處角落。墻頂包覆水泥肌理藝術漆,蘊生低調沉穩氣息,部分弧形處理柔和了整體硬朗的架構,書寫自然無壓的恬適感。
色彩的大規模留白加上極簡的線條結構,打造明凈利落的空間底質。客餐之間的橫梁拉出一道燈線延伸至墻,作為兩側無形分界,同步指引著視線循序推進。

電視主墻以輕盈如紙般的曲面成功捕捉目光焦點,懸浮造型給予空間極大程度的通透感。深色木質框構了中部的電視機和置物區,進退虛實,深淺對比,有力凸顯簡而不凡層次。


橫豎筆直的線條架構搭襯曲面弧度,設計透過起承轉合的鋪展邏輯,巧妙將空間放大于無形。豎向與橫向雙維的延展給予生活超廣闊視野,從外而內帶給人舒適愉悅的感受。


與素樸硬裝相輔相成的是精簡的軟裝布置,客廳只保留幾件屋主需要的家具,讓渡出更寬闊的活動空間。陽光穿透夢幻簾在室內形成美妙的光影效果,釋放悠然愜意的況味。
餐廳


明亮光線也為餐廳注入了更多空靈的感覺,干凈利落的形制,角落復古鋼琴,共同塑造這處高級感藝術領地。造型極簡的黑色餐桌椅帶來視覺上的反差效果,與侘寂感的基底氛圍巧妙糅合,日常生活情境與高雅審美品味在此統一。
廚房


開放式餐廚區納入島臺,洄游動線讓空間更具多變性。依循建筑結構,廚房臺面與櫥柜呈L字展開,順勢推延出西廚操作區。雅灰柜面與黑色灶具、家電形成碰撞,輕巧地勾勒利落輪廓。
樓梯

樓梯口相鄰一組玻璃封閉柜,通透材質化解深色的沉悶并拓增空間儲物量能。


樓梯空間結合懸浮式踏步與玻璃扶手營造輕盈、動感之美,光線在其間流轉,時光也仿佛慢了下來,在耳邊訴說著塵封已久的故事。
上一篇:開局一個精裝房,逆襲全靠改造!
免費
免費申請戶型規劃
專屬設計師免費1對1全程服務
已經有3781人申請
24小時免費咨詢電話
400-8800-618
你家預算
108080元