
【新河壩】現代簡約風私宅,開敞自由布局,適意舒適四人居
MODERN · STYLE
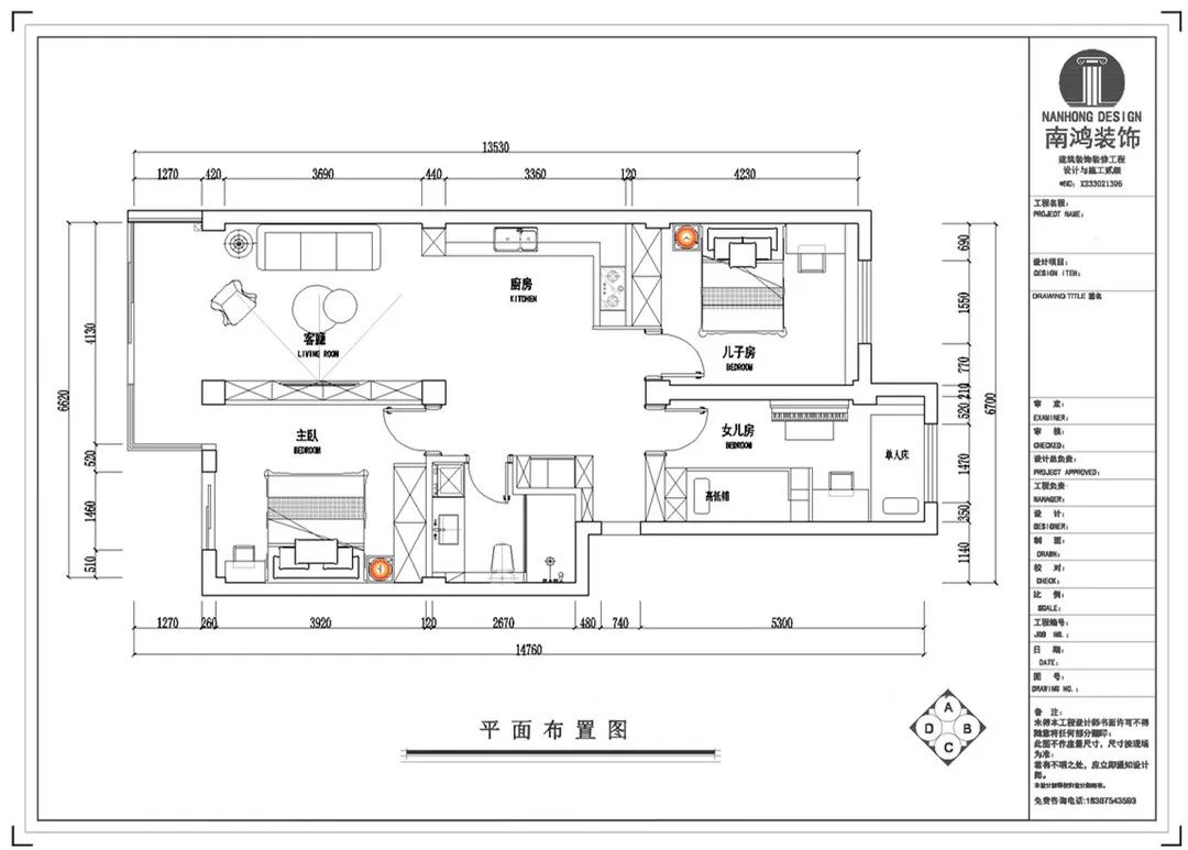
作品前言 本案是帶院子的戶型,家中有夫妻二人和一兒一女。業主喜歡簡潔舒適,不喜歡繁雜的事物。設計以通達和流動為關鍵詞,重新梳理了空間邏輯關系,將零碎的空間統一歸置,形成具有朗闊感和流動性的自由場所,讓業主能夠充分享受到開放式空間所帶來的尺度感。 戶型方案? 設計說明:將廚房移至外邊,做開放式設計,原先廚房的位置與邊上的房間重新分配空間做成兩個兒童房。 實景呈現 >>玄關 玄關做落塵區塑造歸家儀式感,黑白面結合的收納柜奠定全屋的現代風基調,無把手設計讓視覺更干凈。 >>客廳 空間以簡凈的黑白灰打造,樸素地營造靜謐無壓的居家氛圍。頂面無主燈設計加強空間視覺的流暢感,電視背景墻結合了儲物柜,提升空間的實用性。 戶型在一樓有一個花園,改變客廳位置后,將靠花園那面墻改成了大面的玻璃移門,大大增強了整體的采光效果。 >>餐廚區 打開餐廚區,空間感與采光得到雙重加強,開闊之余,也讓家人間的情感聯系變得更加緊密。半圍合式收納兼操作區,木白結合的配色最有家的那種簡單的溫馨味道。立面排布著置物架、置物欄,不占用臺面空間,干凈利落的氛圍讓人舒心。 >>臥室 臥室的軟裝家具選用與墻面相近的色系,整體的統一感更強。 墻面做硬包與格柵的結合,增加一定的層次。定制的床頭柜自衣柜自然延伸而出,空間更加的利落整潔。 >>衛生間 衛浴選用長臺盆柜和鏡柜,加上馬桶上方壁龕的設計,日常的物件收拾和衛生打掃皆是輕輕松松。 —— / 項目信息 / 地址:新河壩 城市:中國 杭州 戶型:三室兩廳 面積:94㎡ 風格:現代簡約 設計單位:浙江南鴻裝飾 施工單位:浙江南鴻裝飾 - Thanks For Watching -














免費
免費申請戶型規劃
專屬設計師免費1對1全程服務
已經有3781人申請
24小時免費咨詢電話
400-8800-618
你家預算
108080元